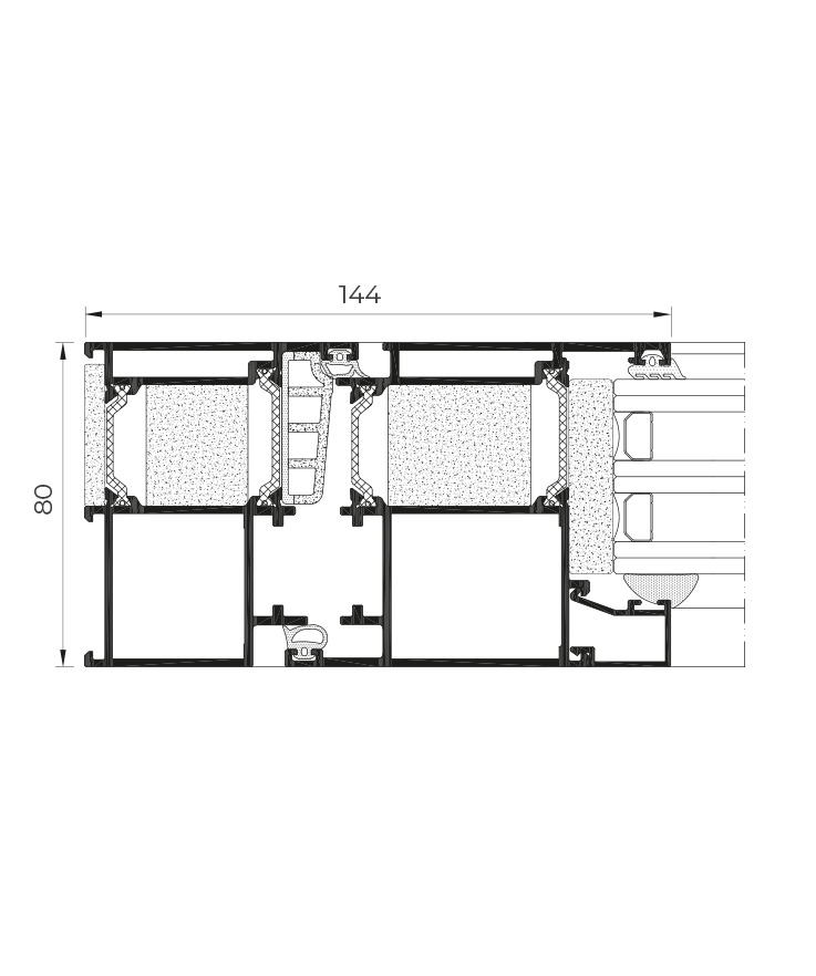
Sistem de ușă pietonală coplanară cu linii drepte, adâncime de 80 mm și întrerupere a punții termice de 34 mm, recomandat în special pentru spații comerciale și clădiri.
Specificatii tehnice:
- Transmitanță termică: Ud ≥ 0,8 (W/m²K)
- Izolare acustică: Rw până la 40 dB
- Permeabilitate la aer: Clasa 4
- Etanșeitate la apă: Clasa 6A
- Rezistență la vânt: Clasa C4
- Impact corp moale: Clasa 5 (max.)
- Deschideri și închideri repetate: 1.000.000 cicluri
- Rezistență la efracție: Clasa RC2 (WK2)


Secțiuni
Toc 80 mm, Canat 80 mm
Lungime bară poliamidă
34 mm
Grosime profiluri
Ușă 2,0 mm
Vitrare
Max. 64 mm, Min. 15 mm
Dimensiuni maxime canat
Ușă:
Lățime (L) 1800 mm, Înălțime (H) 3000 mm
Ușă cu balamale ascunse:
Lățime (L) 1500 mm, Înălțime (H) 3000 mm
Greutate max. canat
220 kg

